№ у базі:
30045
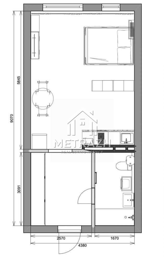
Кімнат:
1
Тип угоди:
Продаж
Поверх:
3/10
Район:
Дарницький
Площа, м²:
39 / 0 / 10