!-- Google Tag Manager --> Продаж Новобудова на 3 кімнати в Києві ЖМ Патріотика - 6163 | Метраж

Схожі варіанти

alt
7
Квартира, Гмирі Бориса, ЖМ Патріотика, Київ

69000$

Район:
Дарницький
Вулиця:
Гмирі Бориса
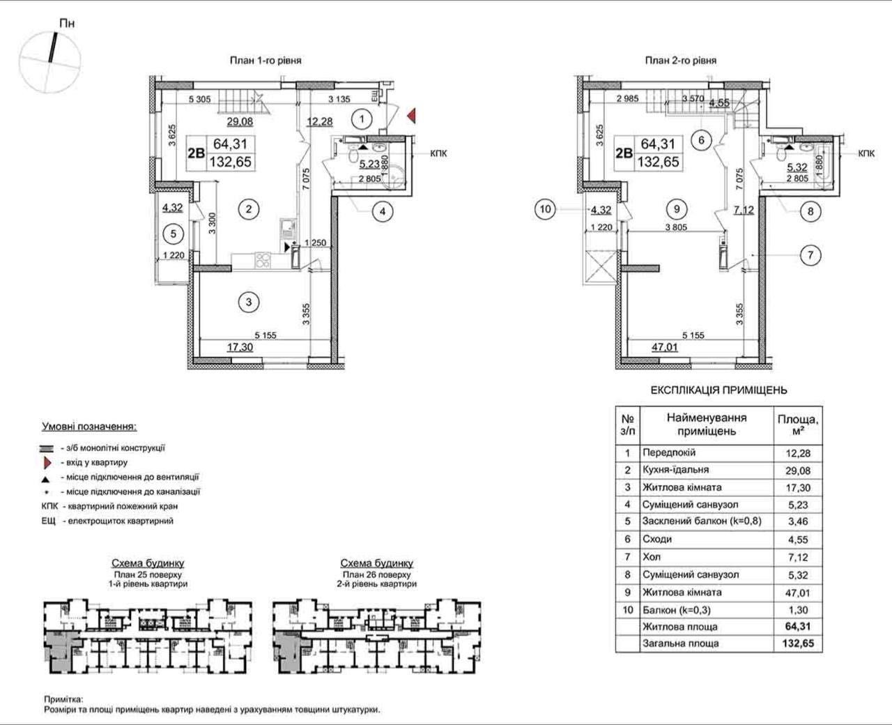
Площа:
134/0/30 м2
Поверх:
25/26
Кількість кімнат:
4
Закрити